Материалы для строительства и рекламы. Светопрозрачные конструкции

Материалы для строительства и рекламы
  • Главная
  • Материалы
  • Конструкции
  • Цены
  • Контакты

Получить консультацию по тунельным теплицам: (067) 566-07-65

Тунельные пленочные теплицы фермерские для коммерческого выращивания

При развитии современного малого бизнеса в сельском хозяйстве Украины сегодня, все больший интерес вызывает тепличный бизнес, основанный на коммерческом выращивании сельскохозяйственных культур с помощью фермерских туннельных пленочных теплиц. Незначительные вложения по возведению пленочных модульных теплиц, снижают риск финансовых потерь, тем самым определяя, возрастающее внедрение этих теплиц.

оцинкованная овальная труба для теплиц

Каркасы наших промышленных фермерских теплиц изготавливаются из специально разработанной овальной трубы 72х40 оцинкованной методом горячего (заводского) цинкования. Расчеты показали, что использование в каркасе трубы овального сечения повышает момент сопротивления в несколько раз. Например, прочность трубы диаметром 60 мм можно повысить в 1,5 раза переформовав ее в овальную.

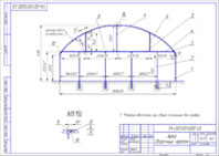
форма промышленных теплиц чертеж

Форма пленочных теплиц для фермеров изготавливаемых нашей компанией имеет огромное преимущество по сравнению с арочными теплицами, т.к. все типоразмеры теплиц имеют ровные боковые стенки высотой не менее 2 метров, что позволяет максимально полезно использовать площадь накрытия теплицы (исключив мертвые зоны для роста растений в местах прихода арки теплицы в грунт). Ширина профессиональных теплиц изготавливаемых нашей компанией приближена к 5, 6, 7, 8, 9 и 10 м. Длина теплиц может быть любой по желанию заказчика.

Конструкции наших теплиц больших размеров разработаны на основе европейских аналагов, не уступают им в качестве, при этом стоимость изготовления и монтажа наших теплиц значительно ниже. По желанию покупателя все теплицы оснащаются дополнительным вспомогательным оборудованием: системами бокового проветривания, шпалерными системами, системой отопления, системами принудительной вентиляции, системой полива, системой орошения. Цены на фермерские теплицы расчитываются индивидуально, но чтобы покупатель мог понимать уровень цены на теплицы больших размеров для коммерческого использования ниже мы приводим прайс на теплицы:

Теплица под пленку 5х12х3,2 м - Цена: уточняйте грн. ( грн./кв.м.)

теплица пленочная фермерская

Материал изготовления каркаса: Овальная труба 72х40 мм
Защитное покрытие каркаса: Горячее заводское оцинкование (срок службы более 25 лет)
Покрытие теплицы: Пленка 150 мкм (светостабилизация около 3 лет)
Монтаж теплицы: По договоренности
Доставка теплицы: За счет покупателя

Дополнительно:
Пленка импортного производства 160-190 мкм: Продлевает срок эксплуатации теплицы без замены пленки до 5 лет, сохраняя светопропускающую способность.
Фасады, двери, фрамуги из поликарбоната: Уменьшает количество щелей в конструкции, продлевает срок эксплуатации фасадов, дверей, форточек.
Система бокового проветривания: Поддерживает оптимальный климат в теплице.
Шпалерная система: Усиление прочности и жесткости каркаса теплицы, служит для подвязки высоко растущих (вьющихся) растений.

Теплица пленочная Фермерская 5х32х3,2 м - Цена: уточняйте грн. ( грн./кв.м.)

теплица фермерская под пленку шириной 5 метров

Материал изготовления каркаса: Овальная труба 72х40 мм
Защитное покрытие каркаса: Горячее заводское оцинкование (срок службы более 25 лет)
Покрытие теплицы: Пленка 150 мкм (светостабилизация около 3 лет)
Монтаж теплицы: По договоренности
Доставка теплицы: За счет покупателя

Дополнительно:
Пленка импортного производства 160-190 мкм: Продлевает срок эксплуатации теплицы без замены пленки до 5 лет, сохраняя светопропускающую способность.
Фасады, двери, фрамуги из поликарбоната: Уменьшает количество щелей в конструкции, продлевает срок эксплуатации фасадов, дверей, форточек.
Система бокового проветривания: Поддерживает оптимальный климат в теплице.
Шпалерная система: Усиление прочности и жесткости каркаса теплицы, служит для подвязки высоко растущих (вьющихся) растений.

Теплица фермерская под пленку 6х10х2,8 м - Цена: уточняйте грн. ( грн./кв.м.)

теплицы коммерческие пленочные шириной 6 метров

Материал изготовления каркаса: Овальная труба 72х40 мм
Защитное покрытие каркаса: Горячее заводское оцинкование (срок службы более 25 лет)
Покрытие теплицы: Пленка 150 мкм (светостабилизация около 3 лет)
Монтаж теплицы: По договоренности
Доставка теплицы: За счет покупателя

Дополнительно:
Пленка импортного производства 160-190 мкм: Продлевает срок эксплуатации теплицы без замены пленки до 5 лет, сохраняя светопропускающую способность.
Фасады, двери, фрамуги из поликарбоната: Уменьшает количество щелей в конструкции, продлевает срок эксплуатации фасадов, дверей, форточек.
Система бокового проветривания: Поддерживает оптимальный климат в теплице.
Шпалерная система: Усиление прочности и жесткости каркаса теплицы, служит для подвязки высоко растущих (вьющихся) растений.

Теплица коммерческая пленочная 6х24х2,8 м - Цена: уточняйте грн. ( грн./кв.м.)

теплицы под пленку шириной 6 метров

Материал изготовления каркаса: Овальная труба 72х40 мм
Защитное покрытие каркаса: Горячее заводское оцинкование (срок службы более 25 лет)
Покрытие теплицы: Пленка 150 мкм (светостабилизация около 3 лет)
Монтаж теплицы: По договоренности
Доставка теплицы: За счет покупателя

Дополнительно:
Пленка импортного производства 160-190 мкм: Продлевает срок эксплуатации теплицы без замены пленки до 5 лет, сохраняя светопропускающую способность.
Фасады, двери, фрамуги из поликарбоната: Уменьшает количество щелей в конструкции, продлевает срок эксплуатации фасадов, дверей, форточек.
Система бокового проветривания: Поддерживает оптимальный климат в теплице.
Шпалерная система: Усиление прочности и жесткости каркаса теплицы, служит для подвязки высоко растущих (вьющихся) растений.

Теплица тунельная модульная пленочная 7х32х3,5 м - Цена: уточняйте грн. ( грн./кв.м.)

теплицы тунельные пленочные шириной 7 метров

Материал изготовления каркаса: Овальная труба 72х40 мм
Защитное покрытие каркаса: Горячее заводское оцинкование (срок службы более 25 лет)
Покрытие теплицы: Пленка 150 мкм (светостабилизация около 3 лет)
Монтаж теплицы: По договоренности
Доставка теплицы: За счет покупателя

Дополнительно:
Пленка импортного производства 160-190 мкм: Продлевает срок эксплуатации теплицы без замены пленки до 5 лет, сохраняя светопропускающую способность.
Фасады, двери, фрамуги из поликарбоната: Уменьшает количество щелей в конструкции, продлевает срок эксплуатации фасадов, дверей, форточек.
Система бокового проветривания: териал изготовления каркаса: Овальная труба 72х40 мм
Защитное покрытие каркаса: Горячее заводское оцинкование (срок службы более 25 лет)
Покрытие теплицы: Пленка 150 мкм (светостабилизация около 3 лет)
Монтаж теплицы: По договоренности
Доставка теплицы: За счет покупателя

Дополнительно:
Пленка импортного производства 160-190 мкм: Продлевает срок эксплуатации теплицы без замены пленки до 5 лет, сохраняя светопропускающуПоддерживает оптимальный климат в теплице.
Шпалерная система: Усиление прочности и жесткости каркаса теплицы, служит для подвязки высоко растущих (вьющихся) растений.

Теплица под пленку модульная тунельная 7х48х3,5 м - Цена: уточняйте грн. ( грн./кв.м.)

теплицы тунельные пленочные шириной 7 метров

Маю способность.
Фасады, двери, фрамуги из поликарбоната: Уменьшает количество щелей в конструкции, продлевает срок эксплуатации фасадов, дверей, форточек.
Система бокового проветривания: Поддерживает оптимальный климат в теплице.
Шпалерная система: Усиление прочности и жесткости каркаса теплицы, служит для подвязки высоко растущих (вьющихся) растений.

Теплица фермерская пленочная 8х16х3,9 м - Цена: уточняйте грн. ( грн./кв.м.)

теплицы фермер пленочные шириной 8 метров

Материал изготовления каркаса: Овальная труба 72х40 мм
Защитное покрытие каркаса: Горячее заводское оцинкование (срок службы более 25 лет)
Покрытие теплицы: Пленка 150 мкм (светостабилизация около 3 лет)
Монтаж теплицы: По договоренности
Доставка теплицы: За счет покупателя

Дополнительно:
Пленка импортного производства 160-190 мкм: Продлевает срок эксплуатации теплицы без замены пленки до 5 лет, сохраняя светопропускающую способность.
Фасады, двери, фрамуги из поликарбоната: Уменьшает количество щелей в конструкции, продлевает срок эксплуатации фасадов, дверей, форточек.
Система бокового проветривания: Поддерживает оптимальный климат в теплице.
Шпалерная система: Усиление прочности и жесткости каркаса теплицы, служит для подвязки высоко растущих (вьющихся) растений.

Теплица профессиональная под пленку 8х24х3,9 м - Цена: уточняйте грн. ( грн./кв.м.)

теплицы професиональные пленочные шириной 8 метров

Материал изготовления каркаса: Овальная труба 72х40 мм
Защитное покрытие каркаса: Горячее заводское оцинкование (срок службы более 25 лет)
Покрытие теплицы: Пленка 150 мкм (светостабилизация около 3 лет)
Монтаж теплицы: По договоренности
Доставка теплицы: За счет покупателя

Дополнительно:
Пленка импортного производства 160-190 мкм: Продлевает срок эксплуатации теплицы без замены пленки до 5 лет, сохраняя светопропускающую способность.
Фасады, двери, фрамуги из поликарбоната: Уменьшает количество щелей в конструкции, продлевает срок эксплуатации фасадов, дверей, форточек.
Система бокового проветривания: Поддерживает оптимальный климат в теплице.
Шпалерная система: Усиление прочности и жесткости каркаса теплицы, служит для подвязки высоко растущих (вьющихся) растений.

Теплица промышленная пленочная 9х24х4,3 м - Цена: уточняйте грн. ( грн./кв.м.)

теплицы промышленные под пленку шириной 9 метров

Материал изготовления каркаса: Овальная труба 72х40 мм
Защитное покрытие каркаса: Горячее заводское оцинкование (срок службы более 25 лет)
Покрытие теплицы: Пленка 150 мкм (светостабилизация около 3 лет)
Шпалерная система: Усиление прочности и жесткости каркаса теплицы, служит для подвязки высоко растущих (вьющихся) растений.
Монтаж теплицы: По договоренности
Доставка теплицы: За счет покупателя

Дополнительно:
Пленка импортного производства 160-190 мкм: Продлевает срок эксплуатации теплицы без замены пленки до 5 лет, сохраняя светопропускающую способность.
Фасады, двери, фрамуги из поликарбоната: Уменьшает количество щелей в конструкции, продлевает срок эксплуатации фасадов, дверей, форточек.
Система бокового проветривания: Поддерживает оптимальный климат в теплице.

Теплица под пленку промышленная 9,6х48х4,3 м - Цена: уточняйте грн. ( грн./кв.м.)

теплицы промышлшенные под пленку шириной 10 метров

Материал изготовления каркаса: Овальная труба 72х40 мм
Защитное покрытие каркаса: Горячее заводское оцинкование (срок службы более 25 лет)
Покрытие теплицы: Пленка 150 мкм (светостабилизация около 3 лет)
Шпалерная система: Усиление прочности и жесткости каркаса теплицы, служит для подвязки высоко растущих (вьющихся) растений.
Монтаж теплицы: По договоренности
Доставка теплицы: За счет покупателя

Дополнительно:
Пленка импортного производства 160-190 мкм: Продлевает срок эксплуатации теплицы без замены пленки до 5 лет, сохраняя светопропускающую способность.
Фасады, двери, фрамуги из поликарбоната: Уменьшает количество щелей в конструкции, продлевает срок эксплуатации фасадов, дверей, форточек.
Система бокового проветривания: Поддерживает оптимальный климат в теплице.

А если Вас, как потребителя не заинтерисовал тепличный бизнес (коммерческое выращивание сельскохозяйственных культур), наша компания рада будет предложить Вам теплицы дачные, садовые, для приусадебных участков небольших размеров , кототрые позволят Вам употреблять в пищу продукцию собственного выращивания, точно зная при этом какие продукты попадают к нам на стол. Звоните нам, приходите к нам в офис, мы надеемся, что Вы сможите выбрать себе теплицу под пленку или поликарбонат для своего приусадебного участка из широкого ассортимента предлагаемого нашей компанией. А наши цены на теплицы Вас приятно удивят.



Теплицы

  • Теплицы "Украина"
  • Уход за теплицами
  • Отопление теплиц
  • Цена теплиц


Каталог материалов

  • УФ печать
  • Обогреватели панельные
  • Поликарбонат
  • Листовой Акрил (оргстекло)
  • Алюминиевые композитные панели
  • Древесно-полимерный композит
  • Стекловолоконные сетки
  • Листовой ПВХ

Каталог конструкций

  • Навесы
  • Теплицы
  • Маркизы
  • Павильоны для бассейнов
  • Перила и ограждения
  • Ворота
  • Наши работы

«Polikar» торговая марка СПД Диденко С. А.
Украина, г. Днепропетровск, ул. Байкова, 3
тел: (067) 566-07-65, (050) 453-68-95, (067) 641-11-10, (067) 620-55-54, (098) 848-96-11
e-mail: polikar@ukr.net, info@polikar.com.ua